Property
Beds
None
Full Baths
None
1/2 Baths
None
Year Built
None
Sq.Footage
15,000
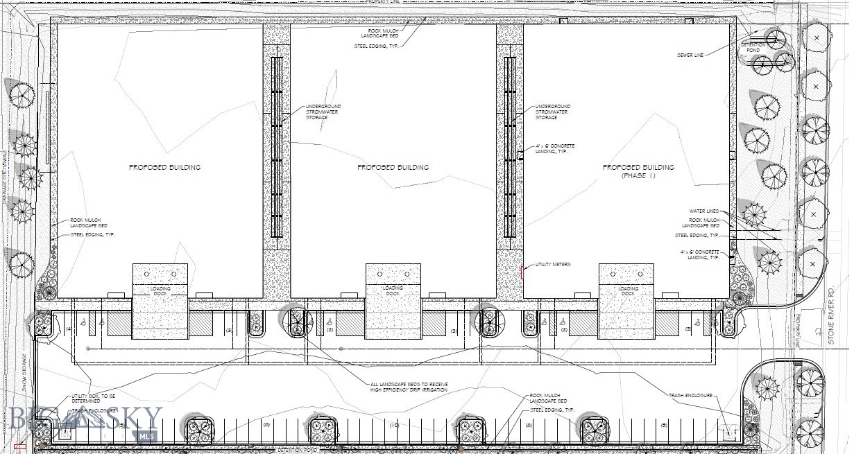
This under construction 15,000 sf warehouse building that will consist of 1 secure loading docks, 1 (12'x14') overhead doors, 3-man doors entrances, small office space, fire suppression, 20' to 25' ceiling height, and 3 phase power (200-amp service). ESFR sprinkler system designed to protect 20’ high storage of Class IV commodities and Group A plastics on racks or on piles. Anticipated completion is 2/15/2026.
Features & Amenities
Interior
-
Total Bedrooms
N/A
-
Bathrooms
N/A
-
Heating YN
YES
-
Heating
Forced Air, Natural Gas
-
Pet friendly
N/A
Exterior
-
Garage
No
-
Parking
Common
-
Pool
No
Area & Lot
-
Property Type
Commercial Lease
-
Property Sub Type
Warehouse
Price
-
Sales Price
$17
-
Zoning
CC – Commercial Corridor
-
Sq. Footage
15, 000
-
Price/SqFt
N/A
HOA
-
Association
YES
-
Association Fee
$90
-
Association Fee Frequency
Quarterly
-
Association Fee Includes
N/A
School District
-
Elementary School
N/A
-
Middle School
N/A
-
High School
N/A
Property Features
-
Sewer
Public Sewer
-
Water Source
Public
Schedule a Showing
Showing scheduled successfully.
Mortgage calculator
Estimate your monthly mortgage payment, including the principal and interest, property taxes, and HOA. Adjust the values to generate a more accurate rate.
Your payment
Principal and Interest:
$
Property taxes:
$
HOA fees:
$
Total loan payment:
$
Total interest amount:
$
Location
County
Gallatin
Elementary School
Middle School
High School
Listing Courtesy of Kevin Black , Starner Commercial Real Estate
RealHub Information is provided exclusively for consumers' personal, non-commercial use, and it may not be used for any purpose other than to identify prospective properties consumers may be interested in purchasing. All information deemed reliable but not guaranteed and should be independently verified. All properties are subject to prior sale, change or withdrawal. RealHub website owner shall not be responsible for any typographical errors, misinformation, misprints and shall be held totally harmless.


* Listings on this website come from the FMLS IDX Compilation and may be held by brokerage firms other than the owner of this website. The listing brokerage is identified in any listing details. Information is deemed reliable but is not guaranteed. If you believe any FMLS listing contains material that infringes your copyrighted work please click here to review our DMCA policy and learn how to submit a takedown request.© 2024 FMLS.

Related Properties
