Property
Beds
1
Full Baths
1
1/2 Baths
None
Year Built
2026
Sq.Footage
749
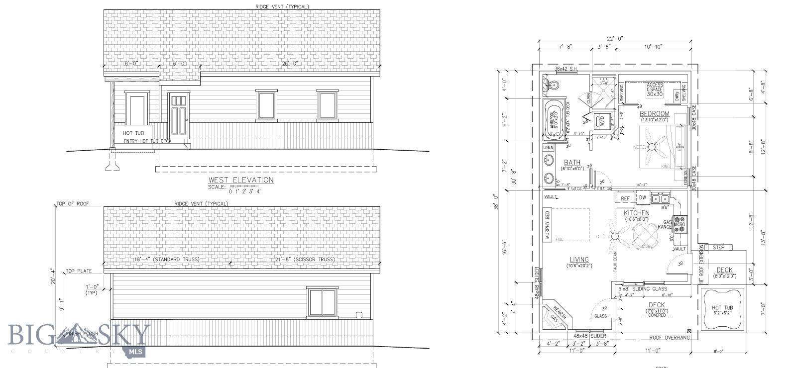
Price is for an unfinished unit. Now Is the Time to Explore the Charming and Magical Experience of Cottages at Old Works, in Anaconda Montana! In a Storybook setting is this 15-unit Cottage project offering free-standing units (no shared walls) which allows individual ownership and privacy. Unit 11 allows you the opportunity to finish the interior to your liking and taste. The builder will bid to finish the interior, or you may choose your own contractor. The floorplan allows for 1 large bedroom, 1 large bathroom, a laundry area, a spacious living room area, a dining area and nice sized kitchen. You have the option to use the unit as an investment property using it as a short-term rental or lease the unit or use it as your primary residential home or as your vacation home. Note: FEMA re-categorized the property to now showing not in a floodplain. A stone's throw from your large front deck to Warm Springs Creek, hear the trickling by of the calming waters as you relax overlooking the creek. Warm Springs Creek is A FLY-FISHING CREEK There are detached single garages available to purchase. The Cottages are located on the creek across from one of the best Golf Courses in the country, THE JACK NICKLAUS OLD WORKS GOLF COURSE!!!! Georgetown Lake is just 14 miles away, as is Discovery Ski Resort. Minutes from year-round recreation- trails, boating at Georgetown Lake, ice fishing, snowmobiling and skiing at Discovery Basin without all the crowds! Call for showing 24 hrs. notice. The owner is a real estate licensee in Montana.
Features & Amenities
Interior
-
Total Bedrooms
1
-
Bathrooms
1
-
Above Grade Finished Area
749.0
-
Cooling YN
NO
-
Cooling
None
-
Heating YN
NO
-
Heating
None
-
Pet friendly
N/A
Exterior
-
Garage
No
-
Parking
No Garage
-
Pool
No
-
Waterfront YN
YES
Area & Lot
-
Lot Features
Waterfront
-
Property Type
Residential
-
Property Sub Type
Condominium
Price
-
Sales Price
$289,900
-
Tax Amount
1330.0
-
Zoning
CALL - Call Listing Agent for Details
-
Sq. Footage
749
-
Price/SqFt
$387
HOA
-
Association
YES
-
Association Fee
$50
-
Association Fee Frequency
N/A
-
Association Fee Includes
N/A
School District
-
Elementary School
N/A
-
Middle School
N/A
-
High School
N/A
Property Features
-
Ownership
Full
-
Sewer
Public Sewer
-
Water Source
Public
Schedule a Showing
Showing scheduled successfully.
Mortgage calculator
Estimate your monthly mortgage payment, including the principal and interest, property taxes, and HOA. Adjust the values to generate a more accurate rate.
Your payment
Principal and Interest:
$
Property taxes:
$
HOA fees:
$
Total loan payment:
$
Total interest amount:
$
Location
County
Deer Lodge
Elementary School
Middle School
High School
Listing Courtesy of Jennifer Shea , Century 21 Shea Realty
RealHub Information is provided exclusively for consumers' personal, non-commercial use, and it may not be used for any purpose other than to identify prospective properties consumers may be interested in purchasing. All information deemed reliable but not guaranteed and should be independently verified. All properties are subject to prior sale, change or withdrawal. RealHub website owner shall not be responsible for any typographical errors, misinformation, misprints and shall be held totally harmless.


* Listings on this website come from the FMLS IDX Compilation and may be held by brokerage firms other than the owner of this website. The listing brokerage is identified in any listing details. Information is deemed reliable but is not guaranteed. If you believe any FMLS listing contains material that infringes your copyrighted work please click here to review our DMCA policy and learn how to submit a takedown request.© 2024 FMLS.
