Property
Beds
None
Full Baths
None
1/2 Baths
None
Year Built
None
Lot size
0.26 acres
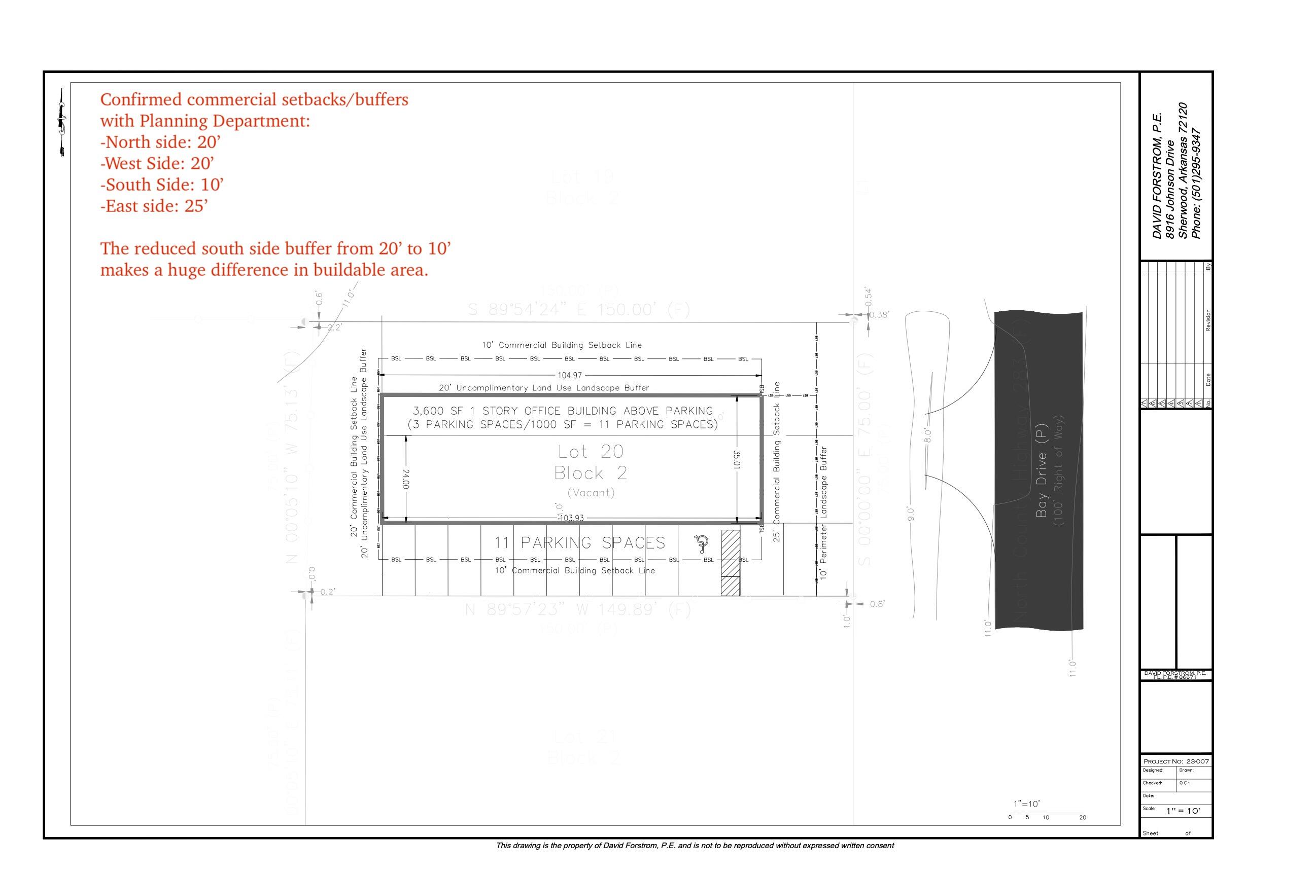
Zoned both Residential and Neighborhood Commercial! Site plans with confirmed setbacks/buffers from Walton Co Planning Department are available. Neighborhood Commercial designation has a variety of uses ranging from offices, retail, or live/work to a restaurant, small scale grocery, or bed & breakfast. A commercial concept would have to go through the standard minor development order process. A residential home would be the normal building permit process. This 75x150 (.26 acre) vacant lot is wooded with beautiful mature pine trees and magnolias. There has been a survey and wetland delineation - showing 100% of the property is uplands and flood zone x (no flood insurance required). Just a 5 minute drive to Grayton beach and Hwy 30A.
Features & Amenities
Interior
- 
    Total Bedrooms N/A 
- 
    Bathrooms N/A 
- 
    Pet friendly N/A 
Exterior
- 
    Garage No 
- 
    Pool No 
- 
    View Bay 
Area & Lot
- 
    Lot Features Wooded 
- 
    Lot Size(acres) 0.26 
- 
    Property Type Land 
Price
- 
    Sales Price $255,000 
- 
    Zoning Commercial, Resid Multi-Family, Resid Single Family 
- 
    Sq. Footage N/A 
- 
    Price/SqFt N/A 
HOA
- 
    Association No 
School District
- 
    Elementary School Dune Lakes 
- 
    Middle School Bay 
- 
    High School South Walton 
Property Features
- 
    Sewer Public Sewer 
Schedule a Showing
Showing scheduled successfully.
Mortgage calculator
Estimate your monthly mortgage payment, including the principal and interest, property taxes, and HOA. Adjust the values to generate a more accurate rate.
Your payment
Principal and Interest:
$
Property taxes:
$
HOA fees:
$
Total loan payment:
$
Total interest amount:
$
Location
County
Walton
Elementary School
Dune Lakes
Middle School
Bay
High School
South Walton
Listing Courtesy of Wells R Buzzett , Engel & Volkers 30A Beaches
RealHub Information is provided exclusively for consumers' personal, non-commercial use, and it may not be used for any purpose other than to identify prospective properties consumers may be interested in purchasing. All information deemed reliable but not guaranteed and should be independently verified. All properties are subject to prior sale, change or withdrawal. RealHub website owner shall not be responsible for any typographical errors, misinformation, misprints and shall be held totally harmless.
 
                 
        * Listings on this website come from the FMLS IDX Compilation and may be held by brokerage firms other than the owner of this website. The listing brokerage is identified in any listing details. Information is deemed reliable but is not guaranteed. If you believe any FMLS listing contains material that infringes your copyrighted work please click here to review our DMCA policy and learn how to submit a takedown request.© 2024 FMLS.
 
                
            .webp?size=346x80) 
          
       
                            
                         
                            
                         
                            
                         
                            
                         
                            
                         
                            
                         
                            
                         
                            
                         
                            
                         
                                 
                                 
                                 
                                 
                                 
                                 
                                 
                                 
                                 
                                